Projeto de arquitetônico
vai iniciar obra ou reforma
precisa organizar layout, circulações e soluções técnicas
quer evitar retrabalho, desperdício e decisões feitas no improviso






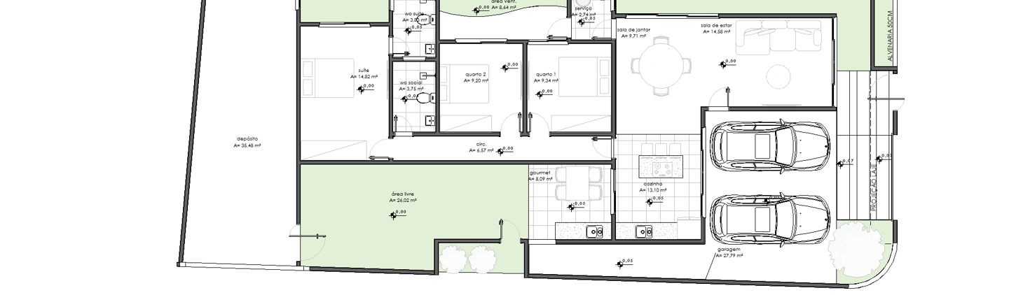
O projeto arquitetônico define o espaço antes da execução.
Tudo é pensado para funcionar bem na prática: rotina, uso dos ambientes e viabilidade da obra.


O QUE VOCÊ RECEBE?
definição de layout
soluções técnicas e funcionais
base clara para executar com segurança

Porque nos escolher?
Para mim, Valentyna, o projeto representa o sonho e uma história. Cada cliente é ouvido, colocado no centro e tem as suas necessidades, desejos e sonhos atendidos. Além de oferecer um suporte durante toda a execução, no Sete Por Um, cada projeto conta uma história, qual a sua?

